Quick wins- Manikandan Street
Manikandan Street/ Cemetery Road, Royapuram
Chennai Primary School & Chennai Higher Secondary School
The campus houses a Primary School (KG- Class V) and High School (Classes VI-X). The School offers both Tamil and English medium classes, however, more students are enrolled under Tamil medium.
Manikandan Street: Satellite image of campus and surrounding areas

Details of Schools in Manikandan Street Campus
|
Schools |
No. of Students |
No. of Teachers |
No. of Classrooms |
No. of Toilets |
|
CPS Cemetry Road |
51 |
3 |
5 |
10 |
|
CHS Manikandan Street |
138 |
8 |
9 |
20 |
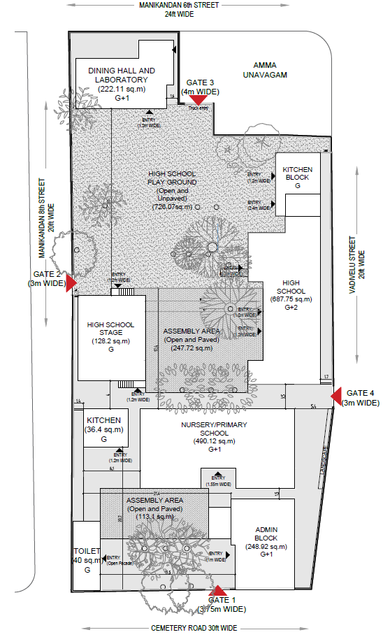
The site plan for the main campus is as below:

Pictures from Manikandan Street Campus




CPS & CHS Cemetery Road (Manikandan Street) Division Division - 51, Zone - V
Interventions in brief:
i) Demolition of existing CPS Buildings
ii) Construction of Integrated academic Block (G+3) with 3 floors for CPS and 1 floor for CHS
iii) Provision of HM room with false roofing, pantry, waiting area, air conditioning and attached toilet
iv) Provision of 2 staff rooms with false roofing, pantry, waiting area, air conditioning and attached toilet (1 in annexe building and 2 in main building)
v) Facelift of existing toilets
vi) Addition of STEM Lab above existing Math Lab
vii) Integrated gate with recess, guard room, and attractive signage
viii) Development of volleyball court
ix) Overall look and feel of school including painting and maintenance work
x) Provision of Tress roofing in front of auditorium to create a multipurpose space for Auditorium, indoor games and dining
To view the full proposed interventions